Backyard Built for Living, Mission San Luis Rey
Overview
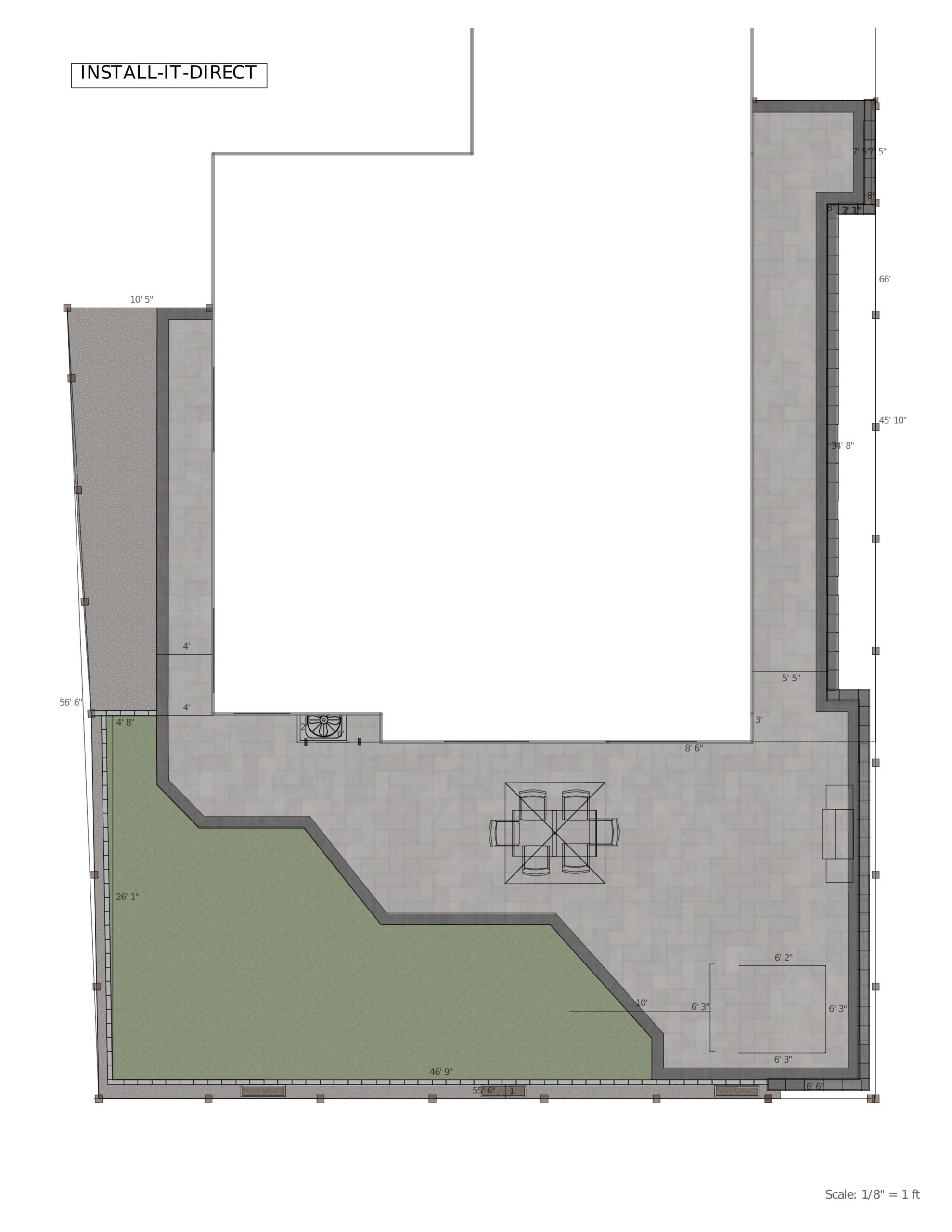
A worn, patchy backyard and bare side yard in Oceanside's Mission San Luis Rey area were replaced with a large interlocking paver patio, a shaped artificial turf lawn, a Bastione segmental wall, and a full drainage system. The project took roughly two weeks of field work and covers the entire usable outdoor area of the property.
Quick Facts
City Oceanside
Neighborhood Oceanside
Constraints/Challenges The site included a narrow side yard requiring a concrete saw cut (9 lf) and jackhammer demolition of the existing walkway before pavers could be set. Excavation reached 8 inches to achieve proper base depth. An existing segmental wall had to be demolished (22 sf). A weep screed clearance deficiency against San Diego County code required correction before project close.
Goals The homeowner wanted to replace a deteriorating, drought-stressed backyard with a low-maintenance outdoor space that could be used year-round. The plan called for a large paver patio, a defined turf lawn, tidy planting beds, and a retaining wall to organize the yard and address drainage issues.
Scope ~1,070 sf Angelus Courtyard Combo paver patio and walkways with dark soldier-course border, 548 sf Imperial Desert Rye artificial turf, Bastione 24-in segmental wall (62 sf face) with 62 charcoal caps, 90 lf drainage (3-in SDR35 and triple-wall perforated pipe), AZ river rock and mulch planting beds, drip irrigation, 78 lf paver-on-edge edging
Style Traditional
Timeline About 2 weeks of field work
Price Range $41,000–$51,000
The Challenge
- The backyard lawn had deteriorated to the point where large sections were bare dirt, making the yard unusable and unattractive for everyday outdoor activity.
- The narrow side yard had an aging concrete walkway that was beyond repair and offered no design continuity with the rest of the property.
- Water management was insufficient across the site, with no dedicated drainage system to move runoff away from the house foundation.
How Install It Direct Helped
Market Context
Neighborhood Context
The Plan
Layout combined a large main patio with a geometric turf cutout and a continuous paver walkway along the side yard, creating visual flow from the back door to the property perimeter.
Paver selection: Angelus Courtyard Combo (Standard) 60MM in a light gray tone with Angelus Courtyard 6×9 accent pavers, finished with a dark soldier-course border set in concrete for contrast and edge definition.
Bastione 24-inch slab segmental wall with charcoal cap/coping selected to retain and define the planting bed area while providing a finished look that coordinates with the dark paver border.
Drainage plan used 60 lf of 3-in SDR35 drain line and 30 lf of 3-in triple-wall perforated pipe with eight drain caps, sized and sloped to meet CRC R401.3 surface drainage requirements away from the foundation.
Planting beds finished with AZ river rock (146 sf total across two zones), standard forest-floor mulch (100 sf), and weed cloth barrier to minimize long-term maintenance.
Drip irrigation zone added for any remaining planted areas, with existing sprinkler lines capped (6 caps) to eliminate conflicts with the new hardscape.
The Build
Work began with removal of the existing backyard turf, shrubs, and 22 sf of the old segmental wall and footing. The side-yard concrete walkway was saw-cut (9 lf) and broken out with a jackhammer. Subgrade was excavated to approximately 7.6 inches across the patio footprint and to the required depth along the side yard to accept a compacted class-II road base.
With the subgrade exposed, the drainage network was trenched and installed: 60 lf of 3-in SDR35 rigid drain line and 30 lf of 3-in triple-wall perforated pipe, connected to eight drain caps positioned at low points. Class-II road base was spread, graded, and compacted to establish proper slope away from the house per CRC R401.3 before bedding sand was screeded.
Angelus Courtyard Combo (Standard) 60MM pavers were set across the main patio, with Angelus Courtyard 6x9 used in accent areas. A dark soldier-course border was set in concrete around the perimeter. The 78-lf paver-on-edge edging (set in concrete with Weston Wall detail) secured the boundary. Simultaneously, the Bastione 24-inch slab wall was built and capped. A supplier defect issue with a full pallet of chipped pavers was identified and escalated the same day, with material remedy coordinated without pausing the schedule. A wall cap color error was caught in the field, and charcoal caps were sourced and installed as a replacement.
After pavers were set and joints filled with gray NextGel polymeric sand, Imperial Desert Rye artificial turf (548 sf) was installed over SGW weed cloth with silica sand infill and seam tape. AZ river rock beds (146 sf) and forest-floor mulch (100 sf) were placed with weed cloth underneath. The drip irrigation valve was connected to the water source with Schedule 40 PVC, and six existing sprinkler lines were capped.
Finishing work included verifying water flow direction away from the house, confirming weep screed clearance compliance, checking all joint sand, and inspecting the wall cap adhesive. Project manager Troy MacMillan completed a final QC walk and signed off on the project.
The Result
Small residential backyard with patchy, drought‑stressed natural grass and exposed dirt, bordered by a wooden fence and a low concrete planter/sidewalk on the left. Sparse ornamental plants along the fence suggest a site ready for landscape renovation such as artificial turf or paver patio installation.
Finished residential backyard showing a light-gray interlocking paver patio with a contrasting dark border and a shaped artificial turf lawn. Clean edge detail and uniform joint lines indicate a completed installation ready for use.
Narrow side yard with an existing concrete walkway running alongside a stucco house and a low segmental retaining the homeowner containing a soil strip. Trash/recycling bins and a few loose the homeowner cap blocks are present, indicating this is an existing condition photo likely taken for site assessment. The soil strip appears ready for future turf or paver work.
Finished interlocking paver walkway installed along the side yard adjacent to the house, featuring large-format gray pavers with a darker soldier-course border. A gravel drainage bed runs parallel to the pavers with a drainage grate visible; a mature tree and fence line define the yard edge.
Finished backyard showing a large-format light-colored paver patio with a contrasting gray paver border and a precise geometric cutout of artificial turf. Clean joints and defined edging indicate a completed installation adjacent to the house exterior and a small playset at the rear.
Finished residential backyard showing a light-gray interlocking paver patio with a contrasting dark border and a shaped artificial turf lawn. Clean edge detail and uniform joint lines indicate a completed installation ready for use.
Residential backyard showing newly installed artificial turf abutting an interlocking paver patio with a contrasting dark paver border. A low segmental retaining curb separates a gravel bed and perimeter plantings; a wooden playset and propane tank sit against the fence.
Newly installed artificial turf lawn bordered by a contrasting interlocking paver patio and walkway. Large-format light-colored pavers with a darker soldier-course border create a clean transition to the synthetic turf; site appears finished with no equipment or materials present.
Finished residential backyard showing a large light-gray paver patio with a dark contrasting border and an adjacent artificial turf inset. Clean joints and no equipment on site indicate a completed installation ready for handoff.
Side yard showing a completed paver walkway of light-colored square pavers with a dark border and integrated drain grate. Adjacent finished area is covered with compacted gravel, a mature tree and ivy along the fence next to the home's stucco exterior.
Finished interlocking paver walkway installed along the side yard adjacent to the house, featuring large-format gray pavers with a darker soldier-course border. A gravel drainage bed runs parallel to the pavers with a drainage grate visible; a mature tree and fence line define the yard edge.
Finished backyard installation showing a paver patio with a contrasting soldier-course border adjacent to installed artificial turf. A low segmental curb/retaining the homeowner separates a gravel drainage strip and planting bed; a wooden playhouse sits on the turf.
Investment
What would a similar project cost in Oceanside?
Toggle components on/off to estimate your project
Frequently Asked Questions
For a project of this scope in Oceanside, budget roughly $41,000 to $51,000. That range covers a large interlocking paver patio (around 1,000 sf), a shaped artificial turf lawn (around 550 sf), a segmental retaining wall, drainage piping, planting beds, and irrigation. Factors that move the number up include drainage complexity, the depth of excavation required, and wall height. Simpler projects with no drainage work can come in under $30,000.
A project of this size typically takes about two weeks of active field work. This project ran from demolition through final QC inspection in approximately two weeks. That timeline includes demo, drainage, base prep, paver installation, wall construction, turf installation, rock beds, and irrigation. Design and permitting coordination happen before field work starts and are not included in that count.
In California, HOAs generally cannot prohibit artificial turf under Civil Code Section 4735, which voids CC&R provisions that effectively ban synthetic grass. HOAs may still set reasonable quality and appearance standards such as pile height and color. If your property is HOA-governed, it is worth submitting an architectural request to document approval, even if the HOA cannot legally deny it. As of early 2026, the City of Oceanside has not enacted any municipal ban on artificial turf.
The main patio and side-yard walkway used Angelus Courtyard Combo (Standard) 60MM pavers in a light gray tone, with Angelus Courtyard 6x9 pavers used in accent areas. The border is a dark soldier-course pattern set in concrete, which creates a strong visual frame around the patio and turf inset. All joints were finished with NextGel gray polymeric sand.
This project used 60 linear feet of 3-inch SDR35 rigid drain line and 30 linear feet of 3-inch triple-wall perforated pipe, connected to eight drain caps at low points in the yard. The system was trenched before base prep and graded to direct water away from the house foundation. California Residential Code R401.3 requires a minimum 6-inch drop within the first 10 feet away from the foundation, and the patio surface slope was set to meet that standard.
Bastione is a segmental retaining wall product made from concrete slabs with a clean, contemporary face. In this project, Bastione 24-inch slabs were used to build a planting bed wall, finished with charcoal cap/coping pieces. It works well in Oceanside-area backyards because the neutral concrete color coordinates with most paver palettes and the wall holds its shape without mortar. For walls under 3 feet in height, a building permit is not required in the City of San Diego jurisdiction, though larger or tiered walls do require one.
Your Outdoor Project in 3 Simple Steps
Design
We listen to your vision, assess your space, and create a custom design that fits your lifestyle and budget.
Build
Our experienced crews bring the design to life with premium materials and expert craftsmanship.
Enjoy
Step into your transformed outdoor space and start making memories with family and friends.
Your Project Manager
Troy MacMillan
Install It Direct is a San Diego-area design-build contractor specializing in residential outdoor living spaces. The team manages the full project from design through final QC, coordinating materials, drainage, and installation on a single contract. On this project, field issues with paver material quality and wall cap color were caught and corrected before handoff.
More Projects
Hillside Backyard Oasis in Ramona, CA
Ramona
Backyard Reinvented in 4S Ranch, San Diego
San Diego
Backyard Reimagined in Stone Canyon, San Marcos
San Marcos
Backyard Reimagined, Encinitas
Encinitas
A Backyard Built to Last, 4S Ranch, San Diego
San Diego
Coastal Curb Appeal in Ocean Beach, San Diego
San Diego
Ready to Transform Your Outdoor Space?
Let's discuss your project and bring your vision to life.